天白第四住宅6号棟 1306

1,590万円

愛知県名古屋市天白区横町301

名古屋市営鶴舞線「植田」駅徒歩10分

価格
1,590万円
間取り
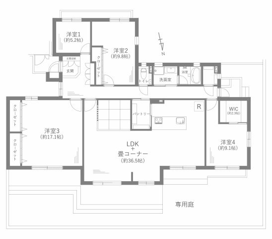
2LDK
向き
南西
所在地
愛知県名古屋市天白区横町301
交通

名古屋市営鶴舞線植田」駅 徒歩10分

専有面積
61.17㎡
築年月
1971年11月(築54年)

物件の特徴

  • エレベーター

セールスポイント

植田駅周辺への引っ越しをお考えなら「天白第四住宅6号棟」。快適な地上16階建ての物件。全居室収納がついてると部屋に物が溢れないのでお薦めです。駅から徒歩10分の場所に位置する物件です。お客様のこれからの生活に大きく関わってくる住まい探しを、当社が誠心誠意を持ってお手伝い致します。ぜひお客様の住まいに対するこだわりをお聞かせください。

ポイント

エレベーター バルコニー フローリング 全居室フローリング LDK15畳以上

担当者のコメント

小川 浩司

専有面積61.17㎡以上あるので広々と使えます。ペットと一緒に暮らしたい方にもご紹介したい、ペット相談可の物件です。駅まで徒歩10分の場所にある物件です。全居室フローリングの中古マンションとなっています。交通アクセスが良好な植田周辺なら、どこへ行くにも不便さを感じることはないでしょう。不動産をお探しなら、ぜひ当社にお任せ下さい。

基本情報

管理費
7,000円
修繕積立金
12,000円
修繕積立基金
-
間取り / 詳細
2LDK
※専有面積、バルコニー面積ともに実測値の為、誤差が生じる可能性あり
向き
南西
専有面積
61.17㎡
バルコニー面積
6.00㎡
その他面積
-
-
-
所在階 / 階建て
13階 / 16階建
建物構造
鉄骨鉄筋コンクリート
築年月
1971年11月(築54年)
種別
中古マンション
土地権利
所有権
土地
(敷金 / 保証金)
- / -
国土法届出要否
-
接道状況
-
用途地域
-
地勢
-
都市計画
-
現況
空家
引渡し
即時
取引態様
仲介
棟総戸数
96戸
管理形態
管理会社に全部委託
管理会社 /
管理組合有無
日本ハウズイング㈱ / -
リフォーム
    2026年5月
    キッチン 浴室 トイレ 壁 床 全室 フルリノベーション
取引条件の
有効期限
2026年04月27日

設備条件

設備条件
  • ペット相談 / ペット飼育可 / 陽当り良好 / リフォーム済 / リノベーション済 / 眺望良好 / フローリング / バルコニー / エレベーター / システムキッチン / 温水洗浄便座
設備(その他)
    -

その他

物件番号
102241994
管理コード
-
建築確認番号
-
情報更新日
2026年04月13日
次回更新予定日
2026年04月27日
取扱会社
  • 株式会社小川不動産事務所
  • 愛知県名古屋市東区豊前町3丁目1-2 
  • TEL:052-936-0259
  • 愛知県知事 (7) 第16969号
    賃貸住宅管理業  国土交通大臣(2)第000176号
    不動産投資顧問業 一般ー第1345号
  • (公社)愛知県宅地建物取引業協会会員
     (公社)全国宅地建物取引業保証協会
     東海不動産公正取引協議会加盟
     (一社)全国賃貸不動産管理業協会
    (一社)全国任意売却協会
備考
植田駅周辺への引っ越しをお考えなら「天白第四住宅6号棟」。広々とした15帖以上のLDKのおかげで、日々の生活にゆとりが出ます。3口コンロが付いているので、たくさん作る場合でも同時に料理を進められます。より良い暮らしができるよう、当社はしっかりとサポート致します。植田周辺で新居をお求めなら、地域に詳しい当社スタッフへご依頼下さい。

支払いシミュレーション

月々の支払額

※実際の金額と異なる場合があります。

購入希望物件価格
万円
頭金
万円
金利
%
返済額(ボーナス1回分)
万円
返済期間

※ボーナスは自動で年2回分で計算されます。

近隣の物件

  1. グランドメゾン八事音聞山

    名古屋市天白区音聞山

    4LDK (170.07㎡)

    9,999万円

  2. ユニーブル原Ⅲ

    名古屋市天白区原4丁目

    3LDK (84.57㎡)

    2,699万円

  3. リリーハイツ八事

    名古屋市天白区弥生が岡

    3LDK (74.33㎡)

    2,390万円

  4. ルミエール八事

    名古屋市天白区表山2丁目

    4LDK (89.64㎡)

    2,499万円

よく見られている物件

  1. 丸美シャトー大須

    名古屋市中区大須2丁目

    3SLDK (98.55㎡)

    2,560万円

  2. グランドヒルズ覚王山法王町松風の邸

    名古屋市千種区法王町2丁目

    3LDK (81.77㎡)

    5,690万円

  3. グラン・コート白川公園

    名古屋市中区栄1丁目

    3LDK (70.35㎡)

    3,699万円

  4. シャトレ愛松一宮7

    一宮市奥町字野方

    3LDK (75.60㎡)

    1,590万円

天白第四住宅6号棟

天白第四住宅6号棟

1,590万円

7,000円

2LDK(61.17㎡)

お気軽にお問い合わせください

LINEからお問い合わせ 無料お問い合わせ

株式会社小川不動産事務所

052-936-0259

9:00~18:00

(休:土・日・祝(ご予約の場合はご対応させていただきます。))